SYNDYK MASY UPADŁOŚCI osoby fizycznej nieprowadzących działalności gospodarczej sprzeda
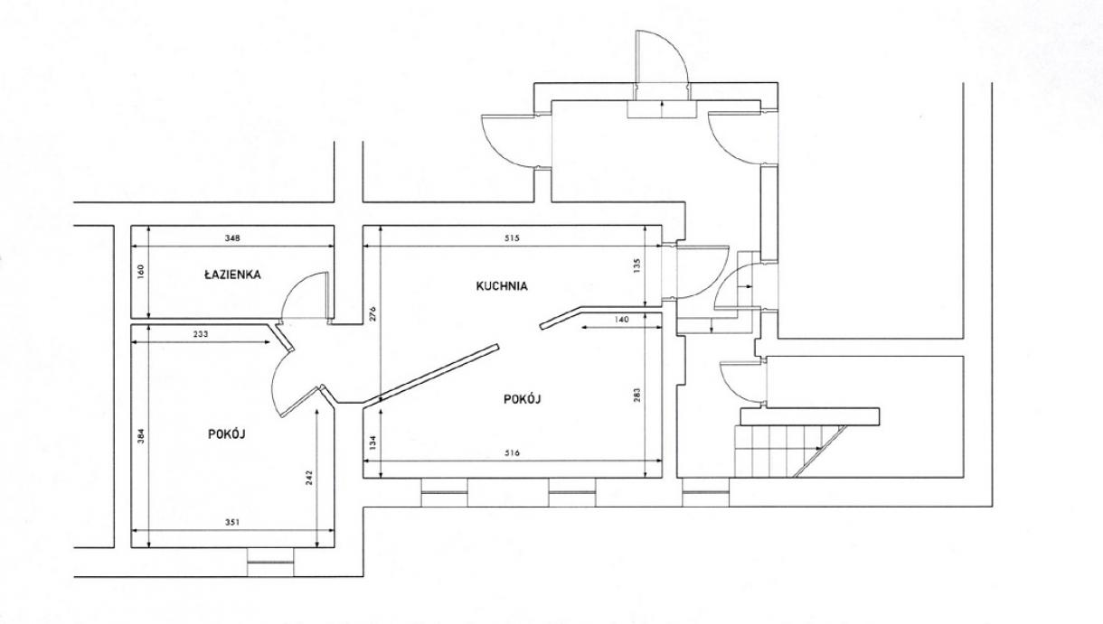
lokal niemieszkalny położony w suterenie budynku przy ul. Kopernika 2A/22 w Mrągowie, w ramach którego korzystanie na zasadach wyłączności obejmuje pomieszczenia gospodarcze o numerach 23/1 i 23/2 o łącznej powierzchni użytkowej 42,54 m2, składające się z dwóch pokoi, otwartej kuchni z przedpokojem oraz łazienki z WC, obecnie wykorzystywane na cele mieszkalne, opisane jako udział 4254/13909 w prawie własności lokalu i częściach wspólnych budynku w księdze wieczystej KW nr OL1M/00035600/1 - za cenę nie niższą niż 3/4 jego wartości oszacowania: 126 750,00 zł (wartość oszacowania: 169 000,00 zł). Lokal niemieszkalny zajmowany przez ojca upadłej, sprzedawany w stanie zasiedlonym.
Sprzedaż prowadzona jest w formie konkursu ofert. Oferty pisemne, z podaniem proponowanej ceny należy składać w Kancelarii Notarialnej Zbigniewa Stankiewicza w Olsztynie przy ul. Dąbrowszczaków 18/4, tel. (89)527 32 30 - w terminie do dnia 27 maja 2026 r. Rozstrzygnięcie konkursu ofert nastąpi 3 czerwca 2026 r. o godz. 10:00. O wyniku oferenci zostaną powiadomieni listownie. Przystąpienie do konkursu oznacza zapoznanie się z regulaminem konkursu ofert i jego akceptacją. Syndyk zastrzega prawo swobodnego wyboru oferty a także unieważnienia konkursu bez podania przyczyn. Nieruchomość można oglądać po uprzednim uzgodnieniu terminu z Panią Sylwią Sowińską tel. 600 533 221. Szczegółowe informacje oraz regulamin konkursu ofert jest dostępny w Internecie na stronie www.syndykolsztyn.com oraz www.syndykolsztyn.eu. Tel. do syndyka 503 313 338.
tel. (71) 34 00 855
fax (71) 34 00 851
email: biuro@dawro.pl
