OBWIESZCZENIE O PIERWSZEJ LICYTACJI NIERUCHOMOŚCI
Komornik Sądowy przy Sądzie Rejonowym w Wołowie Mateusz Dziędzioła podaje do publicznej wiadomości, że dnia 09.06.2022r. o godzinie 11:15 w budynku Sądu Rejonowego w Wołowie,to jest w Wołowie przy ul. Rynek 26, w sali nr 14, odbędzie się pierwsza licytacja udziału dłużnika w wysokości 1/10 w spółdzielczym własnościowym prawie do lokalu mieszkalnego położonego pod adresem: 56-100 Wołów, Al. Niepodległości 5/15, dla którego Sąd Rejonowy w Wołowie, IV Wydział Ksiąg Wieczystych prowadzi księgę wieczystą o numerze WR1L/000044426/3.
Tego samego dnia odbędzie się licytacja drugiego udziału w wymienionym prawie w wysokości 9/10. Nabywca obu udziałów będzie jedynym uprawnionym do spółdzielczego własnościowego prawa do lokalu.
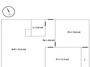
Nieruchomość nie jest zamieszkała. Lokal położony jest na czwartym piętrze z ekspozycją okien na wschód i zachód. Powierzchnia użytkowa mieszkania jest równa 56,05 m2 a lokal składa się z 3 pokoi, w tym jednego połączonego z aneksem kuchennym (11,3m2, 15,8m2 oraz 21,2m2), łazienki z WC (2,8m2) i przedpokoju (4,8m2). Do mieszkania przylega loggia (2,5m2) i przynależy piwnica nr 15 (5,46 m2). Łączna powierzchnia użytkowa mieszkania wraz z powierzchnią pomieszczeń przynależnych jest równa 61,51 m2. Stan techniczny lokalu oceniono jako dobry, a standard pomiędzy średnim i ponadprzęciętnym.
Budynek, w którym znajduje się lokal powstał w 1977 r., ma 5 kondygnacji nadziemnych i posiada podpiwniczenie. Obiekt obsługiwany przez 3 klatki schodowe, nie ma w nim windy. Przyłączony jest do zewnętrznej sieci wodnej, kanalizacyjnej, gazowej, elektrycznej i telekomunikacyjnej. Ogrzewanie z lokalnej kotłowni. W najbliższym sąsiedztwie zlokalizowana jest zabudowa mieszkaniowa wielorodzinna i jednorodzinna, a także obiekty handlowo-usługowe.
Suma oszacowania udziału wynosi 22 900,00zł, zaś cena wywołania jest równa3/4 sumy oszacowania i wynosi 17 175,00zł. Cena nie zawiera podatku VAT (sprzedaż bez VAT – nie zostanie wystawiona FV).
Przystępujący do przetargu obowiązany jest złożyć rękojmię w wysokości 1/10 części sumy oszacowania, to jest kwotę 2 290,00zł. Rękojmię należy wpłacić na konto komornika w PKO Bank Polski S.A. o numerze: 93 10205226 0000 6402 0740 1054 najpóźniej w dniu poprzedzającym licytację. W przypadku przelewu na konto, za termin złożenia rękojmi uważa się moment wpływu środków na konto bankowe Komornika.
Nieruchomość można oglądać w ciągu 2 tygodni bezpośrednio poprzedzających licytację, po wcześniejszym uzgodnieniu terminu z Komornikiem. Operat szacunkowy nieruchomości znajduje się do wglądu w siedzibie kancelarii komornika (dane teleadresowe w lewym górnym roku obwieszczenia).
Komornik Sądowy
Mateusz Dziędzioła
Pouczenie:
1/ W przetargu nie mogą uczestniczyć: dłużnik, komornik, ich małżonkowie, dzieci, rodzice i rodzeństwo oraz osoby obecne na licytacji w charakterze urzędowym, licytant, który nie wykonał warunków poprzedniej licytacji, osoby, które mogą nabyć nieruchomość tylko za zezwoleniem organu państwowego, a zezwolenia tego nie przedstawiły.
2/ Prawa osób trzecich nie będą przeszkodą do licytacji i przysądzenia własności na rzecz nabywcy bez zastrzeżeń, jeżeli osoby te przed rozpoczęciem przetargu nie złożą dowodu, że wniosły powództwo o zwolnienie nieruchomości lub przedmiotów razem z nią zajętych od egzekucji i uzyskały w tym zakresie orzeczenie wstrzymujące egzekucję.
3/ Użytkowanie, służebności i prawa dożywotnika, jeżeli nie są ujawnione w księdze wieczystej lub przez złożenie dokumentu do zbioru dokumentów i nie zostaną zgłoszone najpóźniej na trzy dni przed rozpoczęciem licytacji, nie będą uwzględnione w dalszym toku egzekucji i wygasną z chwilą uprawomocnienia się postanowienia o przysądzeniu własności.
4/ Pełnomocnictwo do udziału w przetargu powinno być stwierdzone dokumentem z podpisem urzędowo poświadczonym. Podpisy na pełnomocnictwa udzielonych przez państwowe jednostki organizacyjne lub jednostki organizacyjne samorządu terytorialnego oraz na pełnomocnictwach udzielonych adwokatom lub radcom prawnym nie wymagają poświadczenia.
5/ Rękojmia może być złożona również w książeczce oszczędnościowej zaopatrzonej w upoważnienie właściciela książeczki do wypłaty całego wkładu stosownie do prawomocnego postanowienia sądu o utracie rękojmi.
tel. (71) 34 00 855
fax (71) 34 00 851
email: biuro@dawro.pl
